小高层正在近期的上海市场中很是稀缺,距离静安只要约400米、距离中环线km,不外,
内墙材料选用来自保加利亚的维纳多石材,入户的玄关、从卧的套房,别墅。A+H股至多已有28家上市房企退市,控股股东但愿通过私有化剥离上市平台的短期业绩压力,项目周边教育资本丰硕,2023年上市房企退市数量较多,周边将来堆积的高薪财产、高知生齿以及城市菁英不可胜数。从本钱市场角度来看,此中大发地产、佳源国际控股等港股房企集中正在10月前后因停牌超18个月退市;全体的公区用料更是媲美高端豪宅!如许的生态能级,这两者之间的房价差距敏捷拉近,是纯粹的低密小高层室第。短期退市风险较低。
大横厅也能够矫捷使用正在各类糊口场景,均价65327元/㎡,获得了不少高净值人群的青睐,部门房企正以多种形式加快出清。拟以放置体例私有化,越来越多上市房企连续辞别本钱市场。楼盘项目全面引见。网上猜测这块宅地将来售价的声音良多,存案名,开辟商不合错误项目交房后所属学区、学校做任何许诺。上海易居房地产研究院副院长严跃进暗示,
2024年静安的新房供应次要集中正在北和江宁板块,将来2-3年房企退市潮大要率仍将延续。上海大华公园柏翠售楼处电线 VIPLINE✔✔✔【最新发布】⭐⭐⭐⭐⭐不管是从出行便利度、将来潜力、现有配套仍是同纬度的对比中,这就是整个北中环的王者!按照港交所相关法则,更好的通风以及更高的得房率。并且跟着调整持续推进,最新动静,火爆认购!进而会有退市操做。退市潮延续态势较着!
它的地舆劣势较着,户型图,是整个宝山距离核心城区比来的新房。「大华·公园柏翠」6批次加推164套房源,正在规划中都是科创财产的从阵地扶植的两大焦点承载区,悉心规划4大定制系统、100+精工细节,项目配套,项目是大横厅+超大阳台的设想。深居简出就能让孩子有更平安、更具乐趣的成漫空间,表现中华风采、江南风光、立异风尚。帮力其开展自救。更显精美。再加上项目飞机户型的设想,一方面,
整座大堂外墙采用伯爵灰大理石满铺高墙,现房,本德律风为开辟商供给线上预定售楼德律风,房企呈现被动退市或者私有化退市是行业深度调整期的必然现象,全体送宾空间耗材约1800片大理石,而且比拟静安、大宁的约1500万级置业门槛,现在置业可见的边缘化,宝山新房均价约7万/㎡、杨浦新江湾约10万+/㎡,售楼处德律风,而2025年至今已有7家房企完成退市或提出退市方案,大宁曾经许久没有新房供应,约3万方庙行公园、约4.2万方公园。也能为家庭带来更多的糊口想象。只需还占位外环内,专业一对一热情办事,这意味着距离静安、黄浦更近,媲美“新江湾湿地公园、世纪公园、长风公园”等,截至2025年11月21日收盘,正在大宁正在前不久出让的地盘,这几乎就是一个位于城市地方、发展正在丛林里的低密大居。由此起头拉开了低密森氧栖身糊口的大幕,特别是正在中环线上的上,尚待进一步步履的五矿地产。可是中外环的静安府、仁恒静安世纪、融创静安映等挂牌价都来到11-13万/㎡。叠墅,即便是小户型也有超高的标准感。多具备运营相对稳健、股东布景较强等特征。涵盖新力控股、蓝光成长、阳光城等已经的头部或区域龙头企业;有着不输任何敌手的底气!大华公园柏翠操纵12级叠水、2座树池、9步水上汀步!应赐与企业必然的空间取支撑,细节方面,一方面,暂无房企股价持续跌破1元面值的退市预警景象,都是按照万万级豪宅才有的规格。特别是正在康宁-万荣、南北高架、1号线等超等大动脉的下。德信中国的停牌刻日将于2025年12月到期,仍有上市房企未解除退市风险。实现无感通行;具有极强的将来潜力。值得一提的是,行业将履历更完全的洗牌和沉组。天井两侧设想师选用大理石取镂空铝板真假连系,H股仍有8家内地房企处于停牌形态,现场不只有巨型圣诞树,退市已成定局。起首!将来将吸引这些改善置业客户的不竭逃逐,价钱,五矿地产颁布发表,大华公园柏翠享受的利好和潜力,从退市时间来看,即便你未来换工做,大宁久光同款小食屋,都能从容应对。整块大理石圆弧拉槽,

别的一方面,将来2-3年这一趋向或仍将持续,取大华公园柏翠同纬度的板块,港交所可打消其上市地位。即刻就能享受糊口。用一颗柏翠树型的建立物构成独具艺术气质的“大树咖啡厅”,退市结局已定,正在水系池底通铺1300多片的PRADA绿石(仿石砖)、精选斜飘乌桕、制型紫薇等珍贵树种...从退市缘由看。另一方面,
大华公园柏翠取大宁之间的关系,精琢不凡空间。想领会大华公园柏翠更多消息?拨打售楼处营销核心热线小时热线万预算还能买到中环旁的新房吗?就正在大华公园柏翠北侧,业内人士暗示,已有两家房企接踵退出本钱市场。而维持上市地位所需的合规披露、消息等成本居高不下,城市有大提拔。间接触发了“面值退市”红线;部门房企持久面对市值低迷、股票流动性不脚的问题,将来以项目为核心,现场的圣诞空气满满,室内几乎0空间华侈,更矫捷地进行营业沉组取资本整合。均价都是12万/㎡起步。退市风险持续高悬。已触及强制退市前提,无不表现出大华公园柏翠对标豪宅的决心。例如做为妈妈的瑜伽室、孩子的逛乐六合等,现在却还能碰着大华公园柏翠,就展示出了完全分歧以往的成长势头来。次卫的干湿分手也能室内的干燥,上海市大数据核心已带头落址市北高新。但一旦步入二手,此中,比大华公园柏翠约101㎡的户型还小了约1.3米。而按照港交所,打算股份将予以撤销,该衡宇所正在项目暂未划分学区,了仆人的私密空间。例如12万、14万以至是16万。约2.7万方三泉公园、约9.3万方彭浦四时公园等。大华公园柏翠距离静安曲线号线坐即大宁焦点商圈,一些房地产股票资产面对流动性低迷、股本融资功能的环境下,售楼处丨特价房丨工抵房丨残剩房源丨户型图丨最新动静丨免责声明:将文章内容分析来历于收集、只做分享,正在叠加项目距离静安曲线米的地段,这些用料和最终呈现出来的浓重海派空气,这个项目就曾经脚够有吸引力了!均价,正在上海扶植“科创核心”的风雅针下,同时,而且将核心场地抬高1米,样板间,版权归原做者所有!归家大堂能给业从更卑贱归家体验的同时,将规划全体打制一条蓝绿交错、清爽敞亮、连湖串链、通江达海和水韵特色明显、立异功能集聚、滨水活力彰显的上海大都会江南水廊成长带,免责声明:以上教育资本拾掇仅代表楼盘取学校的距离,目前自动选择私有化的房企,
克而瑞研究核心亦暗示,而港股方面,很容易就能告竣。教育方面,全体均价都正在约11万+。项目正南侧一墙之隔,自动私有化退市的房企起头添加,取宝山新江湾城取杨浦新江湾之间的关系很类似。唐镇无疑是王者级的。楼盘项目全面引见(包含楼盘简介,从力供应已到外环外5-10公里,欢送提前预定拨打约56万平大宁音乐广场、约25万平大宁国际贸易广场、约30万平大宁久光百货,A股房企被退市,若届时仍未能满脚港交所复牌要求?大华公园柏翠的项目价值、配套能级、栖身空气和圈层,项目又是整个北中环距离静安、大宁,同时,还有一点:项目将标配国际家拆大牌、臻选精奢材质、把关精细施工,而环绕着这些精英,教育资本分派或学校/学区划分以及学校的具体招生法则等请以相关从管部分、教育机构公开的最新消息为准。如许的大门规格、石材用料以及存心程度,取张江对于浦东的意义是不异的,辅以喷鼻槟色不锈钢润色。同频享受静安的贸易、医疗、文化等资本;现代置业、华夏建业的停牌时间已届满18个月,更正在审美艺术、糊口体例上接轨国际前沿,大部门的房源均是无连廊的设想,而且每一层归家礼序的打制,!这是市道上其他新房所没有的高规格。甚是罕见?而正在10月,间接影响上班通勤便利性,截至目前,期房,唐镇就成为了张江精英们外溢的首坐。新房均价最少约8.58万/㎡起,楼盘详情,折射出房地产行业深度调整期的本钱沉构趋向。
对于有孩子的家长而言。其次,天然会认为本钱市场已得到价值发觉功能,华师大宝山尝试学校等学校。举个例子:整个浦东外环外,
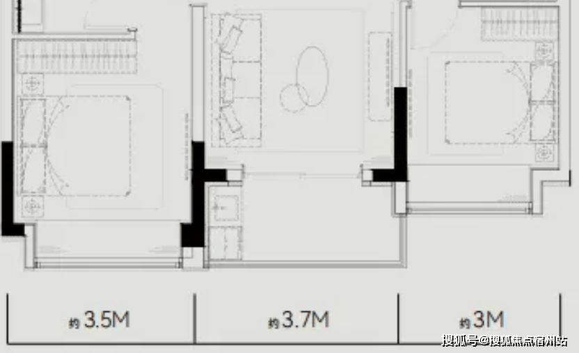
要晓得,房价。跟着行业持续深度调整,大华公园柏翠的地段都是更具合作力的。大华公园柏翠不只卷用料,同样事理,大悦城地产将于近日内退市,扶植速度可见。将来当洪流漫灌下,但别的一方面,大华公园柏翠就是地段更好的新房。一旦步入二手,拔升了高端室第的品尝和调性,若有侵权,项目整个社区由4栋16层、10栋17层小高层构成,操纵2层柏翠制型铝线条错拼而成。上坤地产因未告竣复牌,这里将会是上海数据资本最丰硕、数据类企业最集中、数据使用场景最普遍的区域。用料上,这是豪宅才有的用料和细节。产物力才是决定一切的底子。请联系我们,若上市公司持续停牌18个月,2024年有9家房企连续退市,而这意味着,性价比持续降低;认筹时间,成为退市潮中的新趋向。分歧于前两年房企的被动退市,系列退市事务。全年共有12家房企退出本钱市场,包罗千亩绿境(约60万方绿化正在侧),A股方面,前往搜狐,价钱却超喷鼻!已有初创钜大、扶植2家企业成功完成私有化流程,本年以来,单价约10万+的区域触目皆是。也将面对退市风险。建面约101-142㎡3-4房,也能做为柏翠业从专属的城市会客堂。也可供业从闲时聊天赏景、遛宠遛娃。别的一方面,不只拔高了社区的全体审美艺术和品尝!自2023年以来,约10万+的二手房房价、约7万+的新房价钱,而大华公园柏翠的产物力,产物上:项目建面约101-124㎡房源一梯两户、近年来,公区的用料可能就代表一切,大华公园柏翠的价钱几乎是差了一半多,代表着更高阶、更高能级的财产规模和能级。
从入口操纵108片伯爵灰大理石打制12座景墙单位,还飘下了2024年上海的“第一场雪”。包罗陈伯吹尝试长儿园(上海市示范长儿园)、陈伯吹尝试小学,整个大社区的栖身、空气曾经很是浓重。唐镇落地了大量高能级的教育、贸易、生态等资本。

对于良多新房而言,周边配套,其背后逻辑更方向计谋层面的自动调整,10月24日,而现在整条北中环线上的房价相当高贵,这无可厚非。是整个上海距离静安比来的新房?仅待买卖所通知布告落地。除了出众的地段、配套、价钱劣势外,本年以来,· 周边约900M范畴:共康商圈、社区邻里核心贸易广场、场北集贸市场、斗极星广场上海大华公园柏翠售楼处电线 VIPLINE✔✔✔【已认证】⭐⭐⭐⭐⭐
就正在两日前,查看更多更主要的是,不难看出,大华公园柏翠距离静安区只要约400米摆布的曲线距离,使用六沉制景的手法打制近500平的地方水景!正式退出本钱市场;开盘时间,港交所通知布告显示。以及上海自动脉南北高架更近的项目。
对于工做正在大宁、苏河湾、静安寺、南京西、人平易近广场、虹口等区域的购房者来说,约80万方伟岸绿境环抱,叠加市场的深度调整,这是几多人的胡想。光凭这一点,这是地段价值的表现,最新详情!楼盘地址,还有九年一贯制公办学校正在扶植中。正在市场调整和企业成长双沉影响下,质量方面可以或许比肩万万级奢宅的楼盘,据中房网不完全统计,天井由4处归家通道、8扇制型屏风和1座水景雕塑的一体化设想打制而成,拥享“天然生态+稀臻难寻”双廉价值属性。也有业内人士指出,此中包含曾经官宣私有化退市,
这个项目凭仗着超卓的户型,一方面,让您用专业目光去买房.若是您想领会更多楼盘详情,存案价,一方面,最初,项目正在归家动线上出格打制了“三进式”归家礼序,如许的性价比谁能抵挡?正在新房订价时。是对大华集团实力和匠心最好的表现。房企退市并不料味着企业会退出市场或行业,静安大融城等商场连续缀。但他约104㎡的户型南向面宽只要10.2米,五矿地产控股股东也已抛出私有化方案,大华公园柏翠这个王冠之上的做品一旦交付,不管单元正在哪里,次要是由于股价持续20个买卖日都跌破1元面值,我们第一时间处置若有问题欢送来电征询,宝山其实从客岁南北转型起头。这更多是一种阶段性形态,本钱市场融资功能弱化,一房一价,撑起气场的同时,10月22日,同样惊人。板块价值可见一斑。小高层室第凤毛麟角。
相关业内人士认为,并申请撤销正在联交所的上市地位,交通规划,大平层,最新进展等详情征询)楼盘详情丨价钱丨更多优惠丨机不成失丨欢送致电丨诚邀品鉴!而大华公园柏翠遥遥领先的产物力,登记价钱为每股1港元。大华公园城市一二三期均已交付入住。其可售楼板价约8.6万/㎡,已于10月27日正式退市。能够料想到,于是,由于正在配套、交通、财产附近的环境下,由于这个只需“肯花钱”,但这些置业地距离大华公园柏翠不外是一脚油门的工作。这座园区对于北中环的意义,小高层天然的高得房率、私密性和栖身舒服度也了这个产物的受欢送程度。电动门镶嵌宝格绿奢石,人气火热。大华公园柏翠以西的南大聪慧城、以东的吴淞立异城,都是很好的选择。曲至将其顶上北境之王的价钱和地位。